|
|
Descriptions:
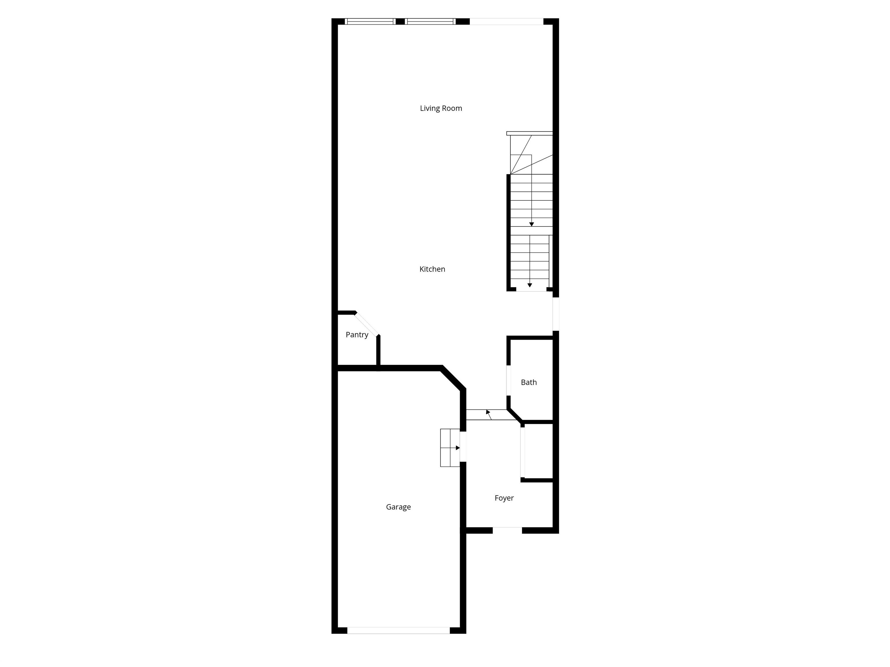
A well-kept home with a *SIDE ENTRANCE* in the sought-after Orchard at Ellerslie. Set on a 600+ mý corner lot, this property offers an urban-oasis feel that's rare to come by in newer neighbourhoods. Fully landscaped and thoughtfully designed, the backyard is a true retreat--complete with an oversized deck, pergola, and established garden. Inside, the home features a modern kitchen with upgraded materials, 3 bedrooms plus a spacious bonus room on the upper level. Luxury Vinyl Plank flooring throughout adds warmth, durability, and low-maintenance appeal. A separate side entrance provides excellent future suite potential, making this home a smart option for investors or homeowners planning ahead. Located on a quiet crescent with minimal through traffic, this home offers peace, privacy, and a strong sense of community--all while remaining close to schools, parks, shopping, and major routes. A rare combination of lot size, functionality, and long-term value.
|
|
|
| Includes: |
|
Dishwasher-Built-In, Dryer, Hood Fan, Refrigerator, Washer |
|
|
|
|
|
| Site Influences: |
| Fenced, Flat Site, Fruit Trees/Shrubs, Landscaped, See Remarks |
|
| Legal Description: |
| ACCESS Legal Description |
|
| Location & Listing Info: |
| Neighbourhood: |
The Orchards At Ellerslie
|
|
| Lot Shape: |
Rectangular |
|
|
|
|
|
| Property Info: |
|
| Property Type: |
Half Duplex |
| Home Style: |
2 Storey |
| Year Built: |
2023 |
| Total Floor Area: |
1,765 sq. ft. |
| Front Exposure: |
Southwest
|
|
|
|
|
|
| Exterior: |
|
| Exterior: |
Fenced, Flat Site, Fruit Trees/Shrubs, Landscaped, See Remarks |
| Front Exposure: |
Southwest |
| Roof: |
Asphalt Shingles |
|
|
|
|
|
|
|
|
|
|
| Rooms: |
|
| Total Bedrooms: |
3
(Bedrooms Above: 3)
|
| Bathrooms: |
Full: 2
/ Half: 1
|
| Rooms Above: |
7 |
|
|
|
|
|
| Additional Info: |
|
| Heating: |
Y |
| Basement: |
Full, Unfinished |
| Basement Type: |
Full, Unfinished |
| Floor Finish: |
Ceramic Tile, Vinyl Plank |
| Parking: |
Single Garage Attached |
|
|
|
|
|
|
|
|
|
|
|
|
|
|
|
 |
Contact MAX BORRELLI -
11058-51 AV, Edmonton, Alberta, T6H 0L4
|
|
|
|
|
|
|
|
|
|
Copyright 2026 by the REALTORS® Association of Edmonton. All Rights Reserved. Data is deemed reliable but is not guaranteed accurate by the REALTORS® Association of Edmonton. Data was last updated March 12, 2026, 2:30 am. |
|
|
|
|
The data included on this website is deemed to be reliable, but is not guaranteed to be accurate by the REALTORS® Association of Edmonton.
MLS®, Multiple Listing Service®, and the associated logos are all registered certification marks owned by CREA and are used to identify real estate services provided by brokers and salespersons who are members of CREA. The trademarks REALTOR®, REALTORS® and the REALTOR® logo are controlled by The Canadian Real Estate Association (CREA) and identify real estate professionals who are members of CREA. Used under license.
|