| 
    			
    				|  |  
    				| Descriptions: 
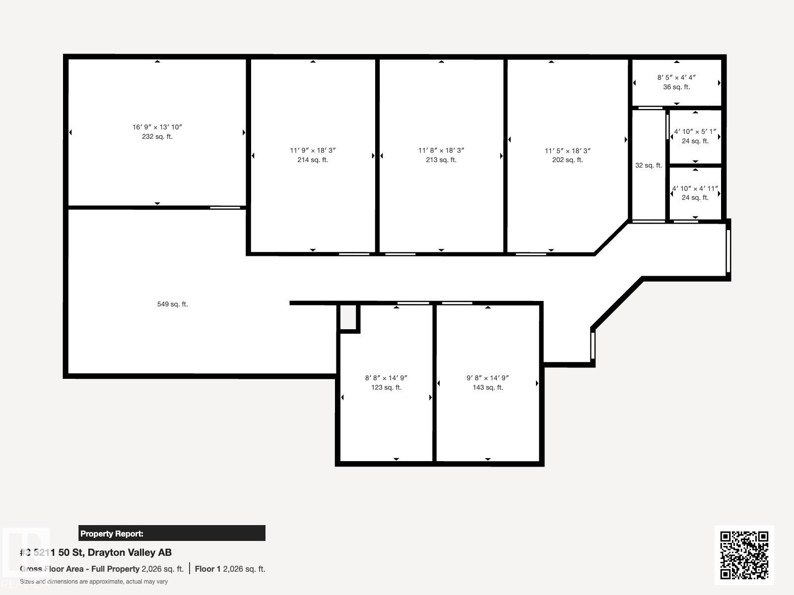
        				        					        						        							Prime 2,034 Sq Ft Office Space Available on 50th Street - Amazing Exposure & Quick Possession!  Looking for the perfect office space in a high-traffic, high-visibility location? Look no further! This 2,034 sq ft professional space offers everything your business needs and more.  Property Highlights: 6 large private offices. Spacious reception area. Kitchen/staff break area. Plenty of parking for staff and visitors. Excellent exposure on busy 50th Street. Quick possession available. This flexible layout is ideal for medical, legal, consulting, or any professional office use. Located in a well-maintained commercial building with high visibility, this space offers both convenience and functionality.  Lease Details: $12.00 per sq ft + Triple Net. Gross lease option considered by landlord. Additional 1,350 sq ft adjacent space also available - combine for over 3,300 sq ft if needed!
        						        					        				     					 |  
    				|  |  
    				|  |  
    				|  |  
    				| 
        					
        						|  |  
        						| 
            						
            							|  |  
            							|  | 
                								
                									| 
                    									                    									
                    										|  |  
                    										|  |  
                    										| Location & Listing Info: |  
                    											| 
                        											
                        												| Neighbourhood: | Drayton Valley |  |  
																							|  |  
                									|  |  
                									|  |  
                									|  |  
                										| 
                    										
                    											| Property Info: |  
                    											|  |  
										                    		| Property Type: | Office |  
										                    		| Year Built: | 1978 |  
                    											|  |  |  
                										|  |  
                										|  |  
                										|  |  
                										|  |  |  |  | 
																 
																                									
                										| 
                    										
                    											| Additional Info: |  
                    											|  |  
																								| Legal Description: | 5211 |  
                    											|  |  |  
                										|  |  |  |  
            							|  |  
            								|  |  
            								|  |  |  
        						|  |  |  
    				|  |  
    				| 
        					
        						|  |  | 
            						
            							|  |  
            							| 
            									
            										| Contact MAX BORRELLI - 11058-51 AV, Edmonton, Alberta, T6H 0L4
 
 |  |  
            							|  |  
            							|  |  |  |  |  
    				|  |  
    				| 
        			        
        				    | Copyright 2025 by the REALTORS® Association of Edmonton. All Rights Reserved. Data is deemed reliable but is not guaranteed accurate by the  REALTORS® Association of Edmonton. Data was last updated October 29, 2025, 4:08 am. |  |  
    				|  |  |  
		|  |  
    
        
            The data included on this website is deemed to be reliable, but is not guaranteed to be accurate by the REALTORS® Association of Edmonton.
      
 MLS®, Multiple Listing Service®, and the associated logos are all registered certification marks owned by CREA and are used to identify real estate services provided by brokers and salespersons who are members of CREA. The trademarks REALTOR®, REALTORS® and the REALTOR® logo are controlled by The Canadian Real Estate Association (CREA) and identify real estate professionals who are members of CREA. Used under license.
 |